Bishop Hill

4+ beds | 4+ baths | 5,363 sq ft

RESERVED

Floor plans for Bishop Hill.
Floor plans for Bishop Hill.
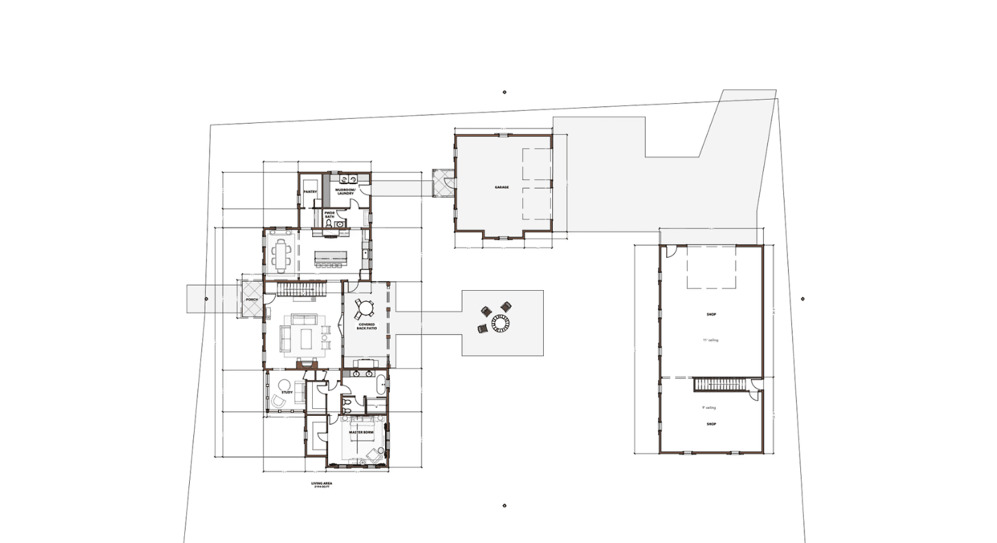
Lot plans for Bishop Hill with back patio, detached garage and shop.
Lot plans for Bishop Hill with back patio, detached garage and shop.
Living room with fireplace rendering and sliding doors opening to the backyard.
Living room with fireplace rendering and sliding doors opening to the backyard.
Renderings of kitchen with large island.
Renderings of kitchen with large island.
Rendering of master bedroom.
Rendering of master bedroom.
Rear exterior rendering of large home and detached garage.
Rear exterior rendering of large home and detached garage.
Aerial rendering showing the lot layout with home, garage, backyard, and shop.
Aerial rendering showing the lot layout with home, garage, backyard, and shop.